BINDERNHEIM

Accueil périscolaire à Bindernheim (67)

Client. Communauté de commune de Markolsheim

Programme.  Accueil périscolaire, espace de restauration

Site. Bindernheim (67)

Surface. 800m²

Mission. Concours

Equipe. BALT architecture, haha architecture (mandataire), Ingénierie Bois, Terra energie, Gette, Scène acoustique, BETEB, Bruno Kubler

crédit image. BALT architecture, haha architecture, 3Dskyrta

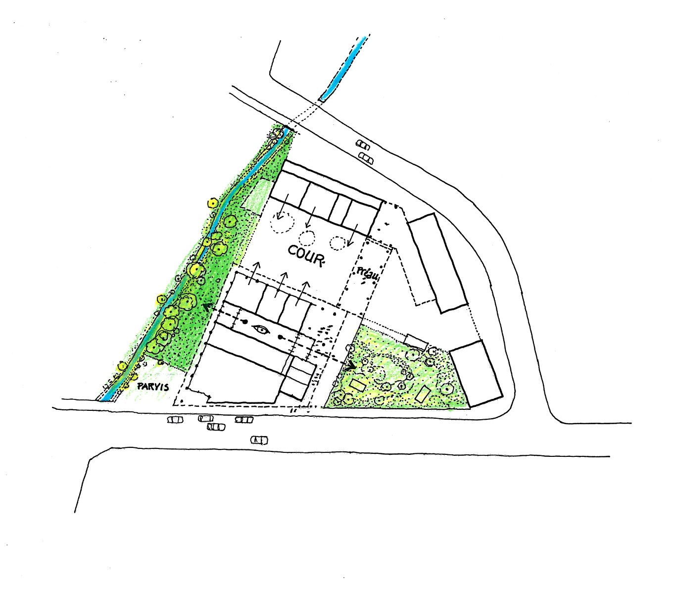
Aujourd’hui, l’école de Bindernheim se lit comme un bâtiment public trouvant sa place au centre du village. Son caractère institutionnel se devine depuis la rue. Par la hauteur de ses planchers et de ses menuiseries, assurant un cadre sain et aéré propre aux bâtiments postérieurs à l’approche hygiéniste. Par la trame rigoureuse se lisant en façade et évoquant la rationalité du savoir.
Pourtant, sa présence s’inscrit avec sobriété dans une architecture plus locale, les rapports de proportions qui lient façade et toiture rappelant les volumes qui ponctuent les rues alentour, la rue de la Dordogne, la rue du Sel, la rue de Sundhouse. Volumes de granges, où les toitures réhaussées permettaient de sécher ou d’entreposer des biens issus du mode de vie agricole qui a façonné l’architecture des coeurs historiques non seulement de Bindernheim, mais aussi des villages voisins, comme à Hilsenheim et Wittisheim.
Ce respect et ce dialogue initié par le bâtiment existant, qui affirme son caractère public sans écraser ce qui l’entoure, nous a guidé dans notre approche.

Le nouvel accueil périscolaire s’inscrit dans une volonté d’améliorer l’accueil et le service aux enfants du secteur, et doit donc trouver, au côté d’un équipement fonctionnant déjà depuis des décennies, sa place dans un organisme vivant et animé.
Pas question donc de se placer en rupture, ni même ‘à côté’. Le bâtiment proposé reprend le langage de l’école existante et les traits de ses voisins.
Le programme est concentré sous un volume, donnant la part belle à la toiture, élément prédominant dans l’architecture
environnante. Cette dernière, élément familier et identifiable, couvre et protège le nouvel équipement, et est supportée par de larges poteaux maçonnés couleur grès. Le bâtiment s’implante le long de la rue de la Dordogne, pour recréer une intériorité au groupe scolaire ainsi créé, achevant de construire la continuité bâtie formant îlot entre les rues de la Dordogne et du Sel.